Tina de vi del Blanquer
Oristà
Ubicació
Coordenades:
Classificació
Descripció
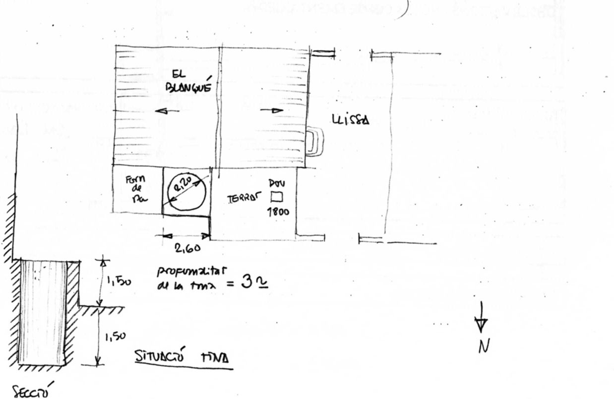
La tina de vi del Blanquer es troba situada a la façana nord de la masia del Blanquer, al costat esquerra de l'eixida on hi ha el pou. La tina està formada, interiorment, per una estructura cilíndrica de parets de pedra petita (còdols) arrebossades, amb un diàmetre de 2'20 metres i una profunditat aproximada de 3 metres. Exteriorment està formada per una estructura rectangular, construïda amb maçoneria de pedra, de 1,20 metres d'alçada conservada. A l'interior hi ha aigua i s'està cobrint de vegetació.
La tercera imatge s'ha extret de l'Inventari de Patrimoni Industrial de Catalunya.
Història
Les tines eren elements indispensables en el procés d'elaboració del vi. En les zones on abundava el conreu de la vinya, com és el cas d'Oristà, bona part de les cases tenien una tina. El procés s'iniciava amb la recol·lecció del raïm, que era transportat amb portadores fins a la part superior de la tina, on es col·locaven unes fustes travesseres lleugerament separades anomenades brescat. El raïm s'abocava sobre el brescat i era trepitjat amb els peus. El suc que en sortia, el most, s'escolava a l'interior de la tina dipositant-se al fons i deixava com a residu la brisa, les restes del raïm xafat. En aquest punt es decidia si es volia fermentar el most amb la brisa o sense. Un cop el most havia fermentat es treia de la tina per una pedra amb un forat interior, la boixa, situada a la part baixa de la tina que solia donar al celler.
Bibliografia
MESTRE, Pere (1998). Inventari del Patrimoni Industrial de Catalunya. Oristà. Museu de la Ciència i de la Tècnica de Catalunya.


